Cerrado por vacaciones desde el 10 al 18 de agosto. ¡Hasta pronto!
Este proyecto de vivienda con parcela y casa prefabricada cuenta con un terreno de 2676m² y una implantación de una de nuestras casas prediseñadas, el Modelo Picasso 235, de diseño vanguardista y altos estandares de calidad y sostenibilidad. Se encuentra ubicada en la hermosa sierra de Madrid, en la urbanización Los Silillos en Valdetorres de Jarama, Madrid.
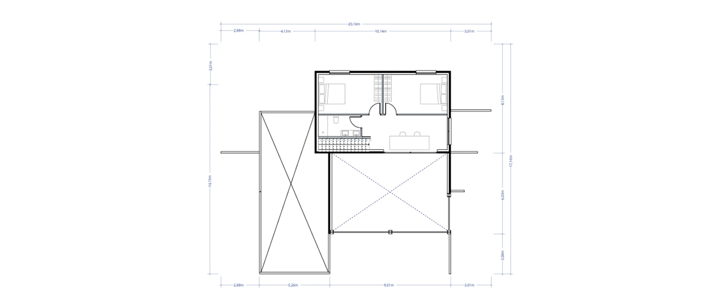
El Modelo Picasso 235, está distribuida en dos plantas y consta de 219,93m². Incluye un salón a doble altura, comedor-cocina, 4 dormitorios, uno en suite con vestidor y baño, 3 baños completos, aseo, zona de estudio, trastero y porche. La personalización del tamaño y la memoria de calidades es posible, permitiendo hasta 350m² de edificación con distribución y acabados personalizados. La parcela se entrega totalmente vallada, con puerta peatonal y de vehículos motorizada, ofreciendo una comodidad y acabado total tanto de la vivienda como de la parcela.
Modular Home se encarga de construir la vivienda en el terreno, que debe ser adquirido previamente por el autopromotor. El precio incluye las siguientes partidas:
Ofrecemos asesoramiento en la financiación de la parcela y de la vivienda, acompañando al cliente durante todo el proceso hasta la entrega de la vivienda, prestando un servicio 360º.
PRECIO DESDE:
745.000€
LLAVE EN MANO
La prestigiosa Urb. Los Silillos, en Valdetorres de Jarama, destaca por su seguridad las 24 horas, sistema de cámaras, club social, áreas comunes, servicio de mantenimiento y un exclusivo club de hípica. Este enclave distintivo ofrece la oportunidad de vivir en un entorno natural privilegiado sin renunciar a las comodidades propias de un pueblo con 5.000 habitantes.
Dentro de la misma área, se encuentran colegios, supermercados, centros de salud, farmacias, restaurantes, iglesias, talleres, guarderías, peluquerías, servicios policiales, bomberos, instalaciones deportivas, piscina municipal, pistas de pádel y tenis, zonas de juegos infantiles, servicio de punto limpio y recogida de basuras.
A tan solo 30 minutos de Madrid por la A-1, Los Silillos cuenta con líneas de autobuses interurbanos que conectan con Plaza Castilla cada 25 minutos en horarios regulares. Experimente un estilo de vida equilibrado, donde la seguridad y las comodidades urbanas se entrelazan con la serenidad de un entorno natural.
El acceso a la parcela se realiza mediante la carretera M-103, facilitando la movilidad y conexión con el entorno. Además, estratégicamente situada a solo 30 km del aeropuerto Adolfo Suárez Madrid-Barajas, esta urbanización añade un elemento práctico a su ubicación privilegiada.
Descubre todos los Modular Plus que tenemos para ti. Solicita más información sin compromiso.
Parcela + Casa Modular en Valdetorres de Jarama, Madrid 1B
Parcela + Chalet Independiente en Urb. Los Silillos, Valdetorres de Jarama, Madrid 2
Parcela + Casa Modular en Avinyonet, Barcelona
Parcela + Casa Modular en Alhaurín de la Torre, Málaga
Terreno + Casa Modular en Urb. La Alquería, Alahurín De la Torre, Málaga
¿Listo para empezar tu proyecto?
Con Modular Home tendrás la mejor experiencia en la construcción de tu nueva casa. Cuéntanos tu proyecto y te ofrecemos un asesoramiento completo.
| Cookie | Duración | Descripción |
|---|---|---|
| __cf_bm | 1 hora | Esta cookie, establecida por Cloudflare, se utiliza para admitir la gestión de bots de Cloudflare. |
| _GRECAPTCHA | 6 meses | El servicio Google Recaptcha configura esta cookie para identificar bots y proteger el sitio web contra ataques de spam maliciosos. |
| _icl_current_language | Sesión | Si la web ofrece varios idiomas, esta cookie se utiliza para guardar información sobre el idioma en el que se encuentra configurado el navegador del usuario y permite ofrecerle el contenido de la web en su idioma preferido |
| cookielawinfo-checkbox-analitica | 1 año | CookieYes configura esta cookie para almacenar el consentimiento del usuario para las cookies en la categoría "Análisis". |
| cookielawinfo-checkbox-analytics | 11 meses | Esta cookie la establece el complemento de consentimiento de cookies del RGPD. La cookie se utiliza para almacenar el consentimiento del usuario para las cookies en la categoría "Análisis". |
| cookielawinfo-checkbox-funcionalidad | 1 año | Establecido por el complemento GDPR Cookie Consent para almacenar el consentimiento del usuario para las cookies en la categoría "Funcional". |
| cookielawinfo-checkbox-functional | 11 meses | La cookie se establece mediante el consentimiento de cookies del RGPD para registrar el consentimiento del usuario para las cookies en la categoría "Funcional". |
| cookielawinfo-checkbox-necessary | 11 meses | Esta cookie la establece el complemento de consentimiento de cookies del RGPD. Las cookies se utilizan para almacenar el consentimiento del usuario para las cookies en la categoría "Necesarias". |
| cookielawinfo-checkbox-necessary | Persistente | Esta cookie está configurada por el complemento GDPR Cookie Consent. Las cookies se utilizan para almacenar el consentimiento del usuario para las cookies en la categoría "Necesario". |
| cookielawinfo-checkbox-necessary | 1 año | Establecida por el complemento GDPR Cookie Consent, esta cookie registra el consentimiento del usuario para las cookies en la categoría "Necesarias". |
| cookielawinfo-checkbox-non-necessary | Persistente | Esta cookie está configurada por el complemento GDPR Cookie Consent. Las cookies se utilizan para almacenar el consentimiento del usuario para las cookies en la categoría "No necesarias". |
| cookielawinfo-checkbox-others | 11 meses | Esta cookie la establece el complemento de consentimiento de cookies del RGPD. La cookie se utiliza para almacenar el consentimiento del usuario para las cookies en la categoría "Otros". |
| cookielawinfo-checkbox-others | 1 year | Set by the GDPR Cookie Consent plugin, this cookie stores user consent for cookies in the category "Others". |
| cookielawinfo-checkbox-performance | 11 meses | Esta cookie la establece el complemento de consentimiento de cookies del RGPD. La cookie se utiliza para almacenar el consentimiento del usuario para las cookies en la categoría "Rendimiento". |
| cookielawinfo-checkbox-performance | 1 year | Set by the GDPR Cookie Consent plugin, this cookie stores the user consent for cookies in the category "Performance". |
| cookielawinfo-checkbox-preferencias | 1 year | Set by the GDPR Cookie Consent plugin to store the user consent for cookies in the category "Preferences". |
| cookielawinfo-checkbox-publicidad | 1 año | Establecido por el complemento GDPR Cookie Consent para almacenar el consentimiento del usuario para las cookies en la categoría "Publicidad". |
| CookieLawInfoConsent | 1 año | CookieYes configura esta cookie para registrar el estado del botón predeterminado de la categoría correspondiente y el estado de CCPA. Funciona únicamente en coordinación con la cookie principal. |
| fusionredux_current_tab | Sesión | Cookie instalada por la plantilla o tema de esta web y es esencial en WordPress para mantener la funcionalidad del sitio principal |
| PHPSESSID | Sesión | Cookie técnica que permite que las variables de SESIÓN sean guardadas en el servidor web. Necesaria para el funcionamiento de la web. |
| rc::a | nunca | Esta cookie la establece el servicio recaptcha de Google para identificar bots y proteger el sitio web contra ataques de spam maliciosos. |
| rc::b | session | Esta cookie la establece el servicio recaptcha de Google para identificar bots y proteger el sitio web contra ataques de spam maliciosos. |
| rc::c | session | Esta cookie la establece el servicio recaptcha de Google para identificar bots y proteger el sitio web contra ataques de spam maliciosos. |
| rc::f | nunca | Esta cookie la establece el servicio recaptcha de Google para identificar bots y proteger el sitio web contra ataques de spam maliciosos. |
| tl_6780_6780_1 | 4 Semanas | Cookies técnicas para ejecutar funciones del sitio como no mostrar el banner de publicidad o recordar los ajustes del usuario definidos dentro de la sesión. |
| tl_7111_7111_9 | 4 semanas | Cookies técnicas para ejecutar funciones del sitio como no mostrar el banner de publicidad o recordar los ajustes del usuario definidos dentro de la sesión. |
| tl_7112_7112_10 | 4 Semanas | Cookies técnicas para ejecutar funciones del sitio como no mostrar el banner de publicidad o recordar los ajustes del usuario definidos dentro de la sesión. |
| tve_leads_unique | Sesión | Almacenan información del usuario y sus sesiones en esta web para mejorar la experiencia de usuario |
| viewed_cookie_policy | 11 meses | La cookie la establece el complemento GDPR Cookie Consent y se utiliza para almacenar si el usuario ha dado su consentimiento o no para el uso de cookies. No almacena ningún dato personal. |
| viewed_cookie_policy | Persistente | La cookie se configura mediante el complemento de consentimiento de cookies GDPR y se utiliza para almacenar si el usuario ha consentido o no el uso de cookies. No almacena ningún dato personal. |
| viewed_cookie_policy | 1 año | El complemento GDPR Cookie Consent configura la cookie para que almacene independientemente de si el usuario ha dado su consentimiento o no para utilizar cookies. No almacena ningún dato personal. |
| wfvt_ | 1 Dia | Esta es una cookie propia del complemento de seguridad Wordfence. Ees generada para controlar la protección y seguridad de la web ante un posible mal uso o posibles intentos de hackeo. |
| wfwaf-authcookie | 1 Dia | Esta cookie está configurada por el complemento de seguridad de WordPress “Wordfence”. Se usa para autenticar la solicitud de inicio de sesión del usuario |
| wordpress_logged_in | Sesión | Esta cookies es necesaria para WordPress. Recuerda si estás autentificado en el site mientras navegas entre las páginas. |
| wordpress_test_cookie | Sesión | La finalidad de estas cookies son mantener la información de los usuarios registrados y si permiten cookies. |
| wp-settings-2 | 1 Dia | Cookie utilizada por el CMS WordPress para el almacenaje de preferencias de acceso y usuarios. |
| wp-settings-time-2 | 1 Día | Esta cookie se utiliza para personalizar el interfaz de usuario |
| Cookie | Descripción |
|---|---|
| _gh_sess | Esta cookie se utiliza para preservar los estados de los usuarios en las solicitudes de página. |
| aka_debug | Esta cookie es generada por av.vimeo.com y se utiliza para poder diagnosticar posibles problemas que pudieran ocurrir en el reproductor. |
| prism_798869211 | Cookies técnicas para ejecutar funciones del sitio como no mostrar el banner de publicidad o recordar los ajustes del usuario definidos dentro de la sesión. |
| test_cookie | La finalidad de estas cookies son mantener la información de los usuarios registrados y si permiten cookies. |
| Cookie | Descripción |
|---|---|
| _cfduid | Cookies utilizadas para identificar tráfico web de confianza |
| _clck | Microsoft Clarity sets this cookie to retain the browser's Clarity User ID and settings exclusive to that website. This guarantees that actions taken during subsequent visits to the same website will be linked to the same user ID. |
| _clsk | Microsoft Clarity configura esta cookie para almacenar y consolidar las páginas vistas de un usuario en una única grabación de sesión. |
| _ga | Esta cookie es instalada por Google Analytics. La cookie se utiliza para calcular los datos de visitantes, sesiones, campañas y realizar un seguimiento del uso del sitio para el informe analítico del sitio. Las cookies almacenan información de forma anónima y asignan un número generado aleatoriamente para identificar visitantes únicos. |
| _ga_* | Google Analytics sets this cookie to store and count page views. |
| _gat_gtag | Código de identificación del sitio web para el seguimiento de visitas. |
| _gid | Esta cookie es instalada por Google Analytics. La cookie se utiliza para almacenar información sobre cómo los visitantes usan un sitio web y ayuda a crear un informe analítico de cómo funciona. Los datos recopilados, incluidos el número de visitantes, la fuente de donde provienen y las páginas, aparecen de forma anónima. |
| _hjid | Cookie Hotjar. Esta cookie se establece cuando el cliente llega por primera vez a una página con el script Hotjar. Se utiliza para conservar la identificación de usuario aleatoria, exclusiva de ese sitio en el navegador. Esto garantiza que el comportamiento en visitas posteriores al mismo sitio se atribuirá a la misma ID de usuario. |
| _hjIncludedInSample | Esta cookie está configurada para que Hotjar sepa si ese visitante está incluido en la muestra que se utiliza para generar mapas de calor, embudos, grabaciones, etc. |
| _hjSession_* | Hotjar configura esta cookie para garantizar que los datos de visitas posteriores al mismo sitio se atribuyan al mismo ID de usuario, que persiste en el ID de usuario de Hotjar, que es exclusivo de ese sitio. |
| _hjSessionUser_* | Hotjar configura esta cookie para garantizar que los datos de visitas posteriores al mismo sitio se atribuyan al mismo ID de usuario, que persiste en el ID de usuario de Hotjar, que es exclusivo de ese sitio. |
| CLID | Microsoft Clarity configura esta cookie para almacenar información sobre cómo los visitantes interactúan con el sitio web. La cookie ayuda a proporcionar un informe de análisis. La recopilación de datos incluye el número de visitantes, dónde visitan el sitio web y las páginas visitadas. |
| GPS | YouTube configura esta cookie y registra una identificación única para rastrear a los usuarios en función de su ubicación geográfica |
| has_recent_activity | Esta cookie se utiliza para señalar al sitio web del repositorio de código si el usuario ha navegado por otros recursos del sitio web durante la sesión actual. |
| MR | Esta cookie, establecida por Bing, se utiliza para recopilar información del usuario con fines analíticos. |
| sbjs_current | Sourcebuster configura esta cookie para identificar la fuente de una visita y almacena información de las acciones del usuario en las cookies. Esta cookie analítica y de comportamiento se utiliza para mejorar la experiencia del visitante en el sitio web. |
| sbjs_current_add | Sourcebuster configura esta cookie para identificar la fuente de una visita y almacena información de las acciones del usuario en las cookies. Esta cookie analítica y de comportamiento se utiliza para mejorar la experiencia del visitante en el sitio web. |
| sbjs_first | Sourcebuster configura esta cookie para identificar la fuente de una visita y almacena información de las acciones del usuario en las cookies. Esta cookie analítica y de comportamiento se utiliza para mejorar la experiencia del visitante en el sitio web. |
| sbjs_first_add | Sourcebuster configura esta cookie para identificar la fuente de una visita y almacena información de las acciones del usuario en las cookies. Esta cookie analítica y de comportamiento se utiliza para mejorar la experiencia del visitante en el sitio web. |
| sbjs_migrations | Sourcebuster configura esta cookie para identificar la fuente de una visita y almacena información de las acciones del usuario en las cookies. Esta cookie analítica y de comportamiento se utiliza para mejorar la experiencia del visitante en el sitio web. |
| sbjs_session | Sourcebuster configura esta cookie para identificar la fuente de una visita y almacena información de las acciones del usuario en las cookies. Esta cookie analítica y de comportamiento se utiliza para mejorar la experiencia del visitante en el sitio web. |
| sbjs_udata | Sourcebuster configura esta cookie para identificar la fuente de una visita y almacena información de las acciones del usuario en las cookies. Esta cookie analítica y de comportamiento se utiliza para mejorar la experiencia del visitante en el sitio web. |
| SM | La cookie Microsoft Clarity configura esta cookie para sincronizar el MUID entre dominios de Microsoft. |
| tk_or | Esta cookie es establecida por el complemento JetPack en sitios que usan WooCommerce. Esta es una cookie de referencia utilizada para analizar el comportamiento de referencia para Jetpack |
| tk_r3d | La cookie es instalada por JetPack de Automatic. Se utiliza para las métricas internas de las actividades del usuario para mejorar la experiencia del usuario. |
| vuid | Cookie de Vimeo que garantiza la funcionalidad del reproductor Vimeo en los sitios de los clientes. Se pueden obtener estadísticas sobre el rendimiento de los usuarios en los sitios de los clientes de Vimeo |
| Cookie | Descripción |
|---|---|
| __atuvc, di2, dt, loc, uid y uit | Sistema de compartición en redes sociales. Si está presente en la web permite a los visitantes compartir esta web a través de Facebook, Twitter, correo electrónico y otros medios. Esta función incluye y utiliza una cookie para recopilar información anónima cuando me visitas. AddThis puede utilizar la información que no te identifica personalmente recogida durante tu visita, para que otros sitios pongan anuncios sobre bienes y servicios que puedan ser de interés para ti u otros usuarios |
| __utma __utmb __utmc __utmz | Estas cookies son utilizadas por Vimeo, para que puedan incrustarse y visualizar sus vídeos. Almacenan información sobre cómo se utilizan los videos de Vimeo para que se puedan hacer mejoras e informar de la productividad. Vimeo hace uso de las cookies de google analytics en la utilización de sus videos. |
| IVOOX_0_64_P-0515cfcd914101cd9231c4b5aee78eb91213ba0d31f37bf22381d3971f0f4a3e | Cookie de Ivoox. Plataforma de Podcast |
| IVOOX_0_64_P-2c0a53bf1d0af7f5c48ec8c73fd5b2fcd45362219dd8affc5e8e508097789d23 | Cookie de Ivoox. Plataforma de Podcast |
| IVOOX_0_64_P-d9846e577fc54a6e7a48178ee660aafd0750c50006884638ee89558a14484111 | Cookie de Ivoox. Plataforma de Podcast |
| mailchimp_landing_site | MailChimp configura la cookie para registrar qué página visitó el usuario por primera vez. |
| NID, APISID, CONSENT, HSID, SAPISID, SID, SSID, 1P_JAR | Al crear o iniciar sesión en una cuenta de Google se almacenan las cookies PREF, NID, HSID, APISID, SID, SSID, SAPISID, GAPS, LSID, BEAT, ULS, en su ordenador con el fin de permanecer conectado a su cuenta de Google al visitar sus servicios de nuevo. Mientras permanezca con esta sesión activa y use complementos en otros sitios Web como el nuestro, Google hará uso de estas cookies para mejorar su experiencia de uso |
| player | Estas cookies se instalan al mostrar cualquier video de Vimeo en una página. Aparecen bajo los dominios: av.vimeo.com, vimeo.com, player.vimeo.com y secure-a.vimeocdn.com |
| PREF | Al crear o iniciar sesión en una cuenta de Google se almacenan las cookies PREF, NID, HSID, APISID, SID, SSID, SAPISID, GAPS, LSID, BEAT, ULS, en su ordenador con el fin de permanecer conectado a su cuenta de Google al visitar sus servicios de nuevo. Mientras permanezca con esta sesión activa y use complementos en otros sitios Web como el nuestro, Google hará uso de estas cookies para mejorar su experiencia de uso |
| SID, NID, HSID, APISID, LOGIN_INFO, SAPISID, YSC | Al crear o iniciar sesión en una cuenta de Google se almacenan las cookies PREF, NID, HSID, APISID, SID, SSID, SAPISID, GAPS, LSID, BEAT, ULS, en su ordenador con el fin de permanecer conectado a su cuenta de Google al visitar sus servicios de nuevo. Mientras permanezca con esta sesión activa y use complementos en otros sitios Web como el nuestro, Google hará uso de estas cookies para mejorar su experiencia de uso |
| Source | |
| VISITOR_INFO1_LIVE | Realiza el seguimiento de los vídeos visitados que se encuentran incrustados desde Youtube en la web |
| YSC | Utilizadas en la reproducción de vídeos a través de la web desde Youtube. Mide las reproducciones de videos realizadas por el usuario y registra los eventos de “Me gusta” o “Compartir video”. |
| yt-player-bandwidth | La cookie yt-player-bandwidth se utiliza para almacenar las preferencias y configuraciones del reproductor de video del usuario, particularmente relacionadas con el ancho de banda y la calidad de transmisión en YouTube. |
| yt-player-headers-readable | YouTube utiliza la cookie legible yt-player-headers para almacenar las preferencias del usuario relacionadas con la reproducción y la interfaz del vídeo, mejorando la experiencia de visualización del usuario. |
| yt-remote-cast-available | La cookie yt-remote-cast-available se utiliza para almacenar las preferencias del usuario con respecto a si la transmisión está disponible en su reproductor de video de YouTube. |
| yt-remote-cast-installed | La cookie instalada por yt-remote-cast se utiliza para almacenar las preferencias del reproductor de video del usuario utilizando videos incrustados de YouTube. |
| yt-remote-connected-devices | YouTube configura esta cookie para almacenar las preferencias de video del usuario utilizando videos incrustados de YouTube. |
| yt-remote-device-id | YouTube configura esta cookie para almacenar las preferencias de video del usuario utilizando videos incrustados de YouTube. |
| yt-remote-fast-check-period | YouTube utiliza la cookie yt-remote-fast-check-period para almacenar las preferencias del reproductor de video del usuario para videos incrustados de YouTube. |
| yt-remote-session-app | YouTube utiliza la cookie yt-remote-session-app para almacenar las preferencias del usuario e información sobre la interfaz del reproductor de vídeo integrado de YouTube. |
| yt-remote-session-name | YouTube utiliza la cookie yt-remote-session-name para almacenar las preferencias del reproductor de video del usuario utilizando videos incrustados de YouTube. |
| ytidb::LAST_RESULT_ENTRY_KEY | YouTube utiliza la cookie ytidb::LAST_RESULT_ENTRY_KEY para almacenar la última entrada de resultados de búsqueda en la que hizo clic el usuario. Esta información se utiliza para mejorar la experiencia del usuario proporcionando resultados de búsqueda más relevantes en el futuro. |
| Cookie | Descripción |
|---|---|
| __stripe_mid | Cookie de Stripe |
| _fbp | Cookie de Facebook: Utilizadas por Facebook para proporcionar una serie de productos publicitarios en Facebook. Facebook configura esta cookie para entregar publicidad cuando están en Facebook o en una plataforma digital impulsada por publicidad de Facebook después de visitar este sitio web. Puedes ver más información en este enlace https://www.facebook.com/about/privacy (entendiéndose que no es responsabilidad de esta web el contenido o la veracidad de los sitios web de terceros). |
| _remember_checked_on | Cookies con funcionalidades de Twitter |
| ac_enable_tracking | Esta cookie pertenece a Active Campaigne. Se utiliza principalmente para la automatización del marketing (marketing por correo electrónico automatizado) La declaración de privacidad de ActiveCampaign está disponible aquí |
| bcookie | Cookie de publicidad de la red social Linkedin |
| c_user | Se utiliza junto con la cookie xs para autenticar tu identidad en Facebook |
| datr | Cookie de Facebook para identificar a los navegadores con fines de seguridad e integridad del sitio, entre ellos, la recuperación e identificación de cuentas que puedan estar en riesgo |
| fr | Facebook configura la cookie para mostrar anuncios relevantes, medir y mejorar los anuncios a los usuarios. La cookie también rastrea el comportamiento del usuario en la web en sitios que tienen píxeles de Facebook o complementos sociales de Facebook. |
| Pl presence | Cookies necesarios para el complemento social de Facebook. Se establecen cuando se da consentimiento explícito y el usuario está conectado a Facebook. |
| PYPF | PayPal utiliza cookies para reconocer a sus clientes y acortar el tiempo que el usuario necesita para iniciar sesión en su cuenta de PayPal al consultar su correo electrónico en la base de datos de PayPal |
| sb | Cookie de Facebook que identifica al navegador con fines de autenticación del inicio de sesión |
| tk_lr | Esta cookie es establecida por el complemento JetPack en sitios que usan WooCommerce. Esta es una cookie de referencia utilizada para analizar el comportamiento de referencia para Jetpack |
| Xs | Se utiliza junto con la cookie c_user para autenticar tu identidad en Facebook |
| Cookie | Descripción |
|---|---|
| ANONCHK | La cookie ANONCHK, configurada por Bing, se utiliza para almacenar el ID de sesión de un usuario y verificar los clics en los anuncios en el motor de búsqueda Bing. La cookie también ayuda a generar informes y personalización. |
| IDE | Utilizado por Google DoubleClick y almacena información sobre cómo el usuario usa el sitio web y cualquier otro anuncio antes de visitar el sitio web. Esto se utiliza para presentar a los usuarios anuncios que les sean relevantes según el perfil del usuario. |
| MUID | Bing configura esta cookie para reconocer navegadores web únicos que visitan sitios de Microsoft. Esta cookie se utiliza para publicidad, análisis del sitio y otras operaciones. |
| test_cookie | Doubleclick.net establece esta cookie para determinar si el navegador del usuario admite cookies. |
| VISITOR_PRIVACY_METADATA | YouTube configura esta cookie para almacenar el estado de consentimiento de cookies del usuario para el dominio actual. |
| yt.innertube::nextId | YouTube configura esta cookie para registrar una identificación única para almacenar datos sobre qué videos de YouTube ha visto el usuario. |
| yt.innertube::requests | YouTube configura esta cookie para registrar una identificación única para almacenar datos sobre qué videos de YouTube ha visto el usuario. |
| Cookie | Duración | Descripción |
|---|---|---|
| _cfuvid | session | Cookie de Cloudflare para proporcionar la identificación de tráfico web confiable |
| attributionCookie | pasado | La atribución sin cookies es un método de seguimiento e identificación de los visitantes de un sitio web sin el uso de cookies |
| cookielawinfo-checkbox-de-terceros | 1 year | Description is currently not available. |
| cookies.js | session | No description available. |
| countrecomends | past | Description is currently not available. |
| IE-LANG_CODE | 64 años 6 meses | Cookie que establece el idioma del visitante |
| IE-set_country | 64 años 6 meses | Cookie que establece el pais del visitante |
| purchaseAttr | 12 hours | Description is currently not available. |
| visitAttr | 12 hours | Description is currently not available. |
| yith_wrvp_products_list | 1 month | Description is currently not available. |
| Cookie | Duración | Descripción |
|---|---|---|
| _gat | 1 minuto | Google Universal Analytics configura esta cookie para restringir la tasa de solicitudes y así limitar la recopilación de datos en sitios de alto tráfico. |
| SRM_B | 1 año 24 dias | Utilizado por Microsoft Advertising como ID único para los visitantes. |